1. Về C A N Studio
C A N là đơn vị tiên phong trong việc cung cấp dịch vụ thiết kế và thi công trọn gói, giúp khách hàng sở hữu công trình hoàn thiện từ ý tưởng đến thực tế mà không phải lo lắng hay tốn thời gian quản lý nhiều hạng mục. Với triết lý “Đồng hành từ bản vẽ đến không gian sống”, chúng tôi mang đến những công trình hiện đại, tiện nghi và mang đậm dấu ấn riêng.

2. Dịch vụ Thiết kế & Thi công Trọn gói
Giai đoạn 1: Tư vấn & Lên ý tưởng
-
Khảo sát hiện trạng, lắng nghe nhu cầu và phong cách mong muốn của khách hàng.
-
Đề xuất giải pháp thiết kế phù hợp với công năng, thẩm mỹ và ngân sách.
Giai đoạn 2: Thiết kế chi tiết
-
Triển khai bản vẽ 2D, 3D chi tiết giúp khách hàng dễ dàng hình dung công trình.
-
Đảm bảo yếu tố thẩm mỹ, phong thủy, tối ưu không gian và tính ứng dụng.

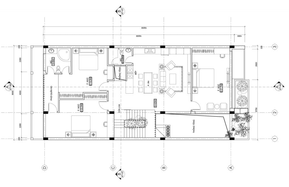
Bảng thiết kế tổng quan
Giai đoạn 3: Thi công hoàn thiện
-
Đội ngũ thi công chuyên nghiệp, giám sát chặt chẽ, đảm bảo tiến độ và chất lượng.
-
Sử dụng vật liệu đạt chuẩn, bền đẹp, an toàn và thân thiện với môi trường.
-
Quy trình thi công minh bạch, hạn chế tối đa phát sinh chi phí.
Giai đoạn 4: Bàn giao & Hậu mãi
-
Bàn giao công trình đúng tiến độ, đúng thiết kế và tiêu chuẩn chất lượng.
-
Chính sách bảo hành rõ ràng, hỗ trợ khách hàng trong suốt quá trình sử dụng.
3. Ưu điểm khi chọn dịch vụ trọn gói tại C A N Studio
-
Tiết kiệm thời gian: Một đơn vị duy nhất phụ trách toàn bộ quy trình.
-
Kiểm soát chi phí: Ngân sách rõ ràng, hạn chế tối đa phát sinh.
-
Đồng bộ và nhất quán: Từ thiết kế đến thi công, đảm bảo đúng ý tưởng ban đầu.
-
Chất lượng & Uy tín: Cam kết mang lại công trình hoàn hảo, bền đẹp và đúng tiến độ.
4. C A N Studio – Biến ý tưởng thành hiện thực
Dù là nhà ở, căn hộ, biệt thự hay văn phòng, showroom, C A N đều mang đến giải pháp trọn gói chuyên nghiệp, giúp khách hàng yên tâm và tận hưởng không gian sống – làm việc lý tưởng.
👉 Hãy để C A N Studio đồng hành cùng bạn trên hành trình kiến tạo không gian mơ ước!